Leave a Message

Thank you for your message. We will be in touch with you shortly.

Explore Our Properties

Property Description

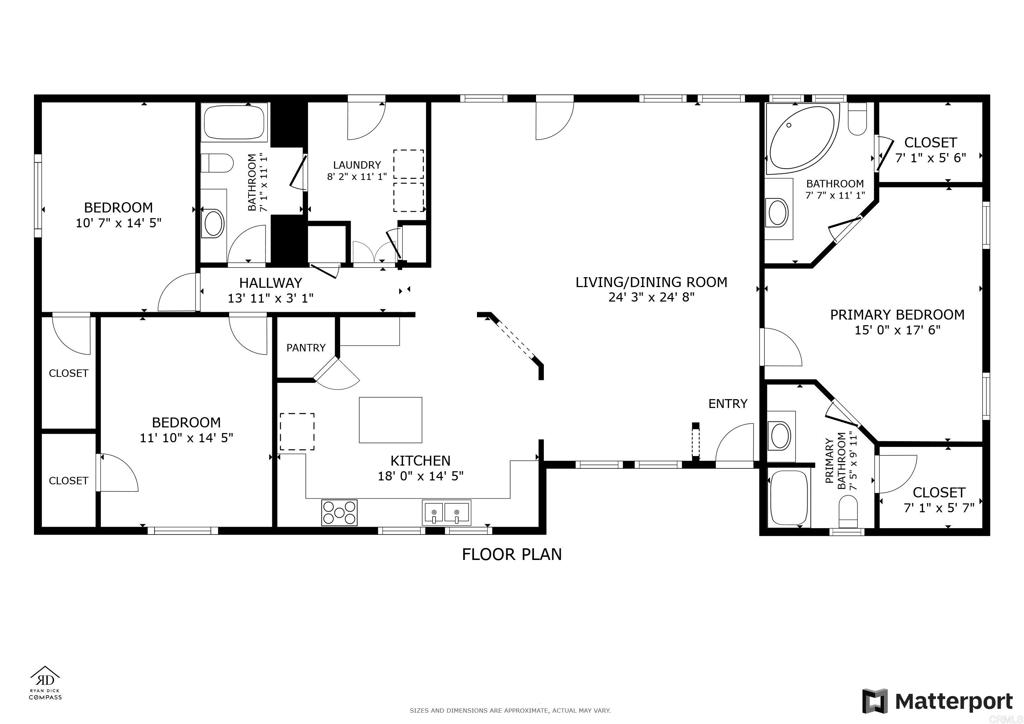
SOLD - Dreaming of a peaceful retreat with stunning views? This 2003 built home in Lake Morena, Campo is your perfect escape! Situated on nearly 3 acres, this property offers breathtaking views of Lake Morena, the mountains, and vibrant sunsets. With a little TLC, this gem can be transformed into your ideal haven. Imagine enjoying the spacious layout, with the primary bedroom boasting two full bathrooms and closets on either side. The expansive living, dining, and kitchen areas are designed for both entertaining and everyday living. Step outside onto the deck and bask in the beauty of mature shade trees and panoramic views. This is where unforgettable memories are made, where you can truly savor the serene lifestyle that this property has to offer. Featuring a mostly level landscape and your private well, this home provides the peace and independence you've been seeking. Plus, with fire sprinklers inside, your insurance will appreciate the added safety measures. Don't let this opportunity slip away, schedule a showing today and envision yourself in this idyllic setting. Your new chapter begins here. Welcome home. Open to USDA, FHA 203K, Cash, Conventional, FHA 203B

Overview

Property Status
Sold
Lot Size
2.8 Acres
MLS ID
PTP2404834
Property Type
Residential
Year Built
2003

Features & Amenities

Architecture Styles
Ranch, Traditional
View Description
Hills, Lake, Mountain(s), Neighborhood, Panoramic
Stories
1
Water Source
Well
Utilites
Electricity Connected, Propane
Pool
None
Roof
Shingle
Lot Features
Gentle Sloping, Horse Property, Rectangular Lot
Parking
Driveway
Air Conditioning
Central Air
Laundry Room
Inside
Fireplace
None
Appliances
Dishwasher, Microwave, Propane Range, Refrigerator, Dryer, Washer
Other Interior Features
Walk-In Pantry, Walk-In Closet(s)
Sewer
Septic Tank
School District
Mountain Empire Unified
Sales Price
$560,000
Zoning
RR / SR-4

Downloads

30096 Quail Road

Schedule a Tour

We would love to help you see this beautiful home! As a full-service brokerage, we can help you tour. Please submit an offer, and answer questions about the buying process.

Thank you

for your interest in 30096 Quail Road, Campo, CA 91906

30096 Quail Road
Navigate
30096 Quail Road
explore in 3d

I'm Interested In

30096 Quail Road

or
  • CallRyan Dick

    License #01951618

    (619) 453-6515
  • Follow Us On Instagram