Leave a Message

Thank you for your message. We will be in touch with you shortly.

Explore Our Properties

Property Description

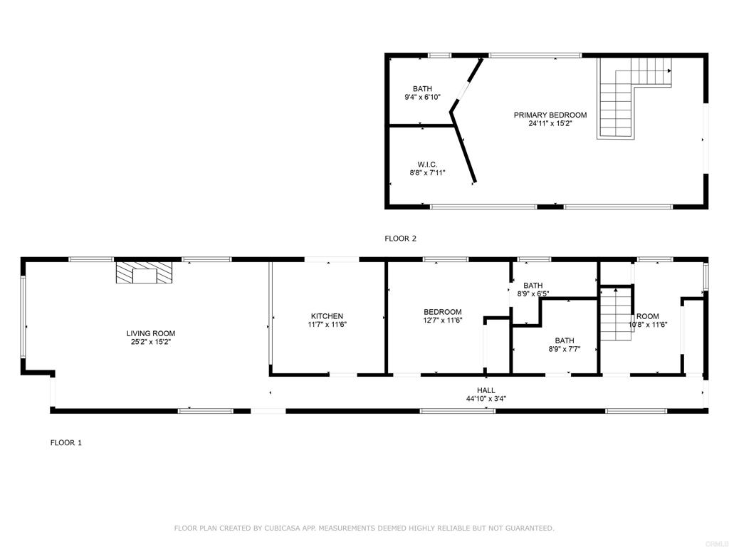
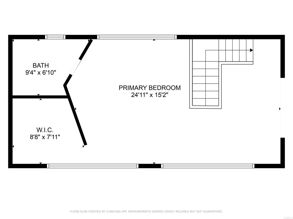
Discover your dream coastal home in this vibrant and colorful beach sanctuary, ideally located just a block away from La Jolla. This stunning property offers peek ocean views of both Mission Bay and the Pacific Ocean from the upstairs bedroom and private deck. Situated just minutes from Tourmaline Beach and Bird Rock, you'll enjoy easy access to world-class beaches, dining, shopping, and entertainment in one of San Diego's most sought-after neighborhoods. Top-Rated Schools: Zoned for La Jolla High School, Muirlands Middle School, and Bird Rock Elementary, this home is perfect for families seeking proximity to top educational institutions. Development Potential: Located outside the California Coastal Commission coastal zone with convenient alley access, this property offers potential for redevelopment or the addition of an ADU (Accessory Dwelling Unit) to create extra living space, providing significant opportunities for expansion and increased value. Bright & Open Living Spaces: The oversized kitchen island seamlessly flows into the open-concept living room, making it an ideal space for entertaining. Relax by the gas fireplace while large windows frame views of the beautifully landscaped front yard, offering ample natural light throughout the day. Spacious Bedrooms & Versatile Spaces: The extra-large upstairs bedroom features a private deck and en-suite bathroom, perfect for peaceful relaxation. The downstairs bedroom also includes an en-suite bathroom, offering privacy and convenience. The smallest bedroom offers endless possibilities--transform it into a home office, playroom, workout space, or a hobby studio. Adjacent is a full bathroom with a tub/shower combo. Modern Comforts & Energy Efficiency: Enjoy year-round comfort with zoned HVAC and lower utility bills thanks to owned solar panels. The attached garage provides convenient parking, plus there's an additional parking space off the alley for extra convenience. Prime Location: Just blocks away from top-rated restaurants, Gelson's Market, The French Gourmet, and vibrant nightlife, this home offers the perfect balance of beachside living and urban convenience. Whether you choose to move in as-is or explore the possibilities for redevelopment, this La Jolla-area gem presents an exciting opportunity to own a piece of coastal paradise.

Overview

Property Status
Sold
Lot Size
3,100 Sq.Ft.
MLS ID
PTP2502452
Property Type
Residential
Year Built
1965

Features & Amenities

Neighborhood
San Diego
Architecture Styles
Bungalow, Shotgun
View Description
Bay, City Lights, Ocean
Stories
2
Garage Spaces
1.0
Pool
None
Roof
Composition
Lot Features
Front Yard, Level
Heat Type
Central, Ductless, Natural Gas
Air Conditioning
Ductless, Gas
Laundry Room
Washer Hookup, Electric Dryer Hookup, Gas Dryer Hookup, In Garage
Fireplace
Gas
Appliances
Built-In Range, Dishwasher, Electric Range, Gas Water Heater, Refrigerator, Water Softener, Tankless Water Heater, Water Purifier, Dryer
Other Interior Features
Walk-In Closet(s)
Sewer
Public Sewer
Substructure
Concrete Perimeter
Other Exterior Features
Awning(s), Balcony
Elementary School
Bird Rock
Middle School
Muirlands
High School
La Jolla
School District
La Jolla
Sales Price
$1,540,000
Zoning
Residential

Downloads

971 Archer Street

Schedule a Tour

We would love to help you see this beautiful home! As a full-service brokerage, we can help you tour. Please submit an offer, and answer questions about the buying process.

Thank you

for your interest in 971 Archer Street, San Diego, CA 92109

971 Archer Street
Navigate
San Diego

Explore San Diego

32.7157° N, 117.1611° W

read more
971 Archer Street
explore in 3d

I'm Interested In

971 Archer Street

or
  • CallMick Frasca

    License #02028305

    (619) 299-9299
  • Browse

    Featured Properties

    • 843 10Th Ave A & B For Sale

      $2,700,000

      843 10Th Ave A & B, San Diego, CA 92101

      • 4 Beds
      • 5 Baths
      • 5,668 Sq.Ft.
    • 12979 Calle De Las Rosas For Sale

      $1,199,999

      12979 Calle De Las Rosas, San Diego, CA 92129

      • 4 Beds
      • 2 Baths
      • 1,368 Sq.Ft.
    • 8868 Gowdy Ave For Sale

      $1,199,888

      8868 Gowdy Ave, San Diego, CA 92123

      • 5 Beds
      • 4 Baths
      • 2,140 Sq.Ft.
    • 1405 Carneros Valley St Pending

      $1,037,500

      1405 Carneros Valley St, Chula Vista, CA 91913

      • 5 Beds
      • 3 Baths
      • 2,407 Sq.Ft.
    • 1540 Santa Alexia For Sale

      $1,024,888

      1540 Santa Alexia, Chula Vista, CA 91913

      • 5 Beds
      • 4 Baths
      • 2,652 Sq.Ft.
    • 3635 7Th Ave 2D For Sale

      $805,000

      3635 7Th Ave 2D, San Diego, CA 92103

      • 2 Beds
      • 2 Baths
      • 1,218 Sq.Ft.
    • 9230 Lake Murray Boulevard F For Sale

      $734,888

      9230 Lake Murray Boulevard F, San Diego, CA 92119

      • 3 Beds
      • 3 Baths
      • 1,561 Sq.Ft.
    • San Diego For Sale

      $595,000

      10225 Caminito Cuervo 133, San Diego, CA 92108

      • 2 Beds
      • 2 Baths
      • 1,103 Sq.Ft.
    • 1270 Cleveland Avenue J205 Pending

      $550,000

      1270 Cleveland Avenue J205, San Diego, CA 92103

      • 1 Bed
      • 1 Bath
      • 735 Sq.Ft.
    • 1331 Columbia St 3610 For Lease

      $18,110/mo

      1331 Columbia St 3610, San Diego, CA 92101

      • 3 Beds
      • 3 Baths
      • 2,018 Sq.Ft.
    • 1331 Columbia St 3507 For Lease

      $18,035/mo

      1331 Columbia St 3507, San Diego, CA 92101

      • 3 Beds
      • 3 Baths
      • 2,018 Sq.Ft.
    • San Diego For Lease

      $17,949/mo

      Private Address

      • 2 Beds
      • 3 Baths
      • 2,182 Sq.Ft.
    • San Diego For Lease

      $16,746/mo

      Private Address

      • 2 Beds
      • 3 Baths
      • 2,191 Sq.Ft.
    • San Diego For Lease

      $16,553/mo

      Private Address

      • 2 Beds
      • 3 Baths
      • 2,282 Sq.Ft.
    • San Diego For Lease

      $15,740/mo

      Private Address

      • 2 Beds
      • 3 Baths
      • 2,217 Sq.Ft.
    • San Diego For Lease

      $15,713/mo

      Private Address

      • 2 Beds
      • 3 Baths
      • 2,403 Sq.Ft.
    • San Diego For Lease

      $15,591/mo

      Private Address

      • 2 Beds
      • 3 Baths
      • 2,174 Sq.Ft.
    • 1331 Columbia St 3503 For Lease

      $15,160/mo

      1331 Columbia St 3503, San Diego, CA 92101

      • 2 Beds
      • 2 Baths
      • 2,051 Sq.Ft.
    • 1331 Columbia St 3503 For Lease

      $15,160/mo

      1331 Columbia St 3503, San Diego, CA 92101

      • 2 Beds
      • 2 Baths
      • 2,051 Sq.Ft.
    • San Diego For Lease

      $15,086/mo

      Private Address

      • 2 Beds
      • 3 Baths
      • 1,886 Sq.Ft.
    • San Diego For Lease

      $14,823/mo

      Private Address

      • 2 Beds
      • 3 Baths
      • 2,061 Sq.Ft.
    • 1331 Columbia St 3609 For Lease

      $14,785/mo

      1331 Columbia St 3609, San Diego, CA 92101

      • 3 Beds
      • 3 Baths
      • 1,795 Sq.Ft.
    • 1331 Columbia St 3506 For Lease

      $14,760/mo

      1331 Columbia St 3506, San Diego, CA 92101

      • 3 Beds
      • 3 Baths
      • 1,795 Sq.Ft.
    • 1331 Columbia St 3602 For Lease

      $14,185/mo

      1331 Columbia St 3602, San Diego, CA 92101

      • 2 Beds
      • 3 Baths
      • 1,701 Sq.Ft.
    • 1331 Columbia St 3604 For Lease

      $14,010/mo

      1331 Columbia St 3604, San Diego, CA 92101

      • 2 Beds
      • 2 Baths
      • 1,633 Sq.Ft.
    • 1331 Columbia St 3606 For Lease

      $14,010/mo

      1331 Columbia St 3606, San Diego, CA 92101

      • 2 Beds
      • 2 Baths
      • 1,632 Sq.Ft.
    • 1331 Columbia St 3601 For Lease

      $13,785/mo

      1331 Columbia St 3601, San Diego, CA 92101

      • 2 Beds
      • 2 Baths
      • 1,668 Sq.Ft.
    • San Diego For Lease

      $13,226/mo

      Private Address

      • 2 Beds
      • 3 Baths
      • 1,839 Sq.Ft.
    • 1331 Columbia St 3608 For Lease

      $10,285/mo

      1331 Columbia St 3608, San Diego, CA 92101

      • 2 Beds
      • 2 Baths
      • 1,384 Sq.Ft.
    • 1331 Columbia St 3504 For Lease

      $10,135/mo

      1331 Columbia St 3504, San Diego, CA 92101

      • 2 Beds
      • 2 Baths
      • 1,363 Sq.Ft.
    • 1331 Columbia St 3607 For Lease

      $10,060/mo

      1331 Columbia St 3607, San Diego, CA 92101

      • 1 Bed
      • 1 Bath
      • 920 Sq.Ft.
    • 1331 Columbia St 3605 For Lease

      $9,435/mo

      1331 Columbia St 3605, San Diego, CA 92101

      • 1 Bed
      • 1 Bath
      • 1,448 Sq.Ft.
    • 1331 Columbia St 3603 For Lease

      $9,385/mo

      1331 Columbia St 3603, San Diego, CA 92101

      • 1 Bed
      • 1 Bath
      • 1,375 Sq.Ft.
    • San Diego For Lease

      $9,360/mo

      Private Address

      • 2 Beds
      • 3 Baths
      • 1,814 Sq.Ft.
    • San Diego For Lease

      $8,699/mo

      Private Address

      • 2 Beds
      • 3 Baths
      • 1,725 Sq.Ft.
    • 675 9th Ave 2016 Pending

      $7,400/mo

      675 9th Ave 2016, San Diego, CA 92101

      • 3 Beds
      • 2 Baths
      • 1,316 Sq.Ft.
    • 3015 Paseo Belluno 5 For Lease

      $4,530/mo

      3015 Paseo Belluno 5, Chula Vista, CA 91913

      • 3 Beds
      • 3 Baths
      • 1,407 Sq.Ft.
    • 5035 Avenida Lugano 6 For Lease

      $4,530/mo

      5035 Avenida Lugano 6, Chula Vista, CA 91913

      • 3 Beds
      • 3 Baths
      • 1,407 Sq.Ft.
    • 525 Olive 1806 For Lease

      $4,506/mo

      525 Olive 1806, San Diego, CA 92103

      • 1 Bed
      • 1 Bath
      • 736 Sq.Ft.
    • 675 9th Ave 2014 Pending

      $4,290/mo

      675 9th Ave 2014, San Diego, CA 92101

      • 1 Bed
      • 1 Bath
      • 780 Sq.Ft.
    • 675 9th Ave 1914 Pending

      $4,256/mo

      675 9th Ave 1914, San Diego, CA 92101

      • 1 Bed
      • 1 Bath
      • 780 Sq.Ft.
    • 675 9th Ave 2106 Pending

      $4,175/mo

      675 9th Ave 2106, San Diego, CA 92101

      • 1 Bed
      • 1 Bath
      • 814 Sq.Ft.
    • 2050 Paseo Belluno 2 For Lease

      $4,050/mo

      2050 Paseo Belluno 2, Chula Vista, CA 91913

      • 2 Beds
      • 3 Baths
      • 1,134 Sq.Ft.
    • 5015 Avenida Lugano 2 For Lease

      $4,050/mo

      5015 Avenida Lugano 2, Chula Vista, CA 91913

      • 2 Beds
      • 3 Baths
      • 1,134 Sq.Ft.
    • 2015 Paseo Belluno 3 For Lease

      $3,450/mo

      2015 Paseo Belluno 3, Chula Vista, CA 91913

      • 1 Bed
      • 2 Baths
      • 903 Sq.Ft.
    • 6000 Luminary Drive 4-218 For Lease

      $3,450/mo

      6000 Luminary Drive 4-218, Chula Vista, CA 91913

      • 2 Beds
      • 2 Baths
      • 1,044 Sq.Ft.
    • 6000 Luminary Drive 4-318 For Lease

      $3,450/mo

      6000 Luminary Drive 4-318, Chula Vista, CA 91913

      • 2 Beds
      • 2 Baths
      • 1,044 Sq.Ft.
    • 6000 Luminary Drive 6-311 For Lease

      $3,430/mo

      6000 Luminary Drive 6-311, Chula Vista, CA 91913

      • 2 Beds
      • 2 Baths
      • 1,125 Sq.Ft.
    • 3075 Avenida Torcello 4 For Lease

      $3,095/mo

      3075 Avenida Torcello 4, Chula Vista, CA 91913

      • 1 Bed
      • 2 Baths
      • 903 Sq.Ft.
    • 6000 Luminary Drive 1-304 For Lease

      $2,595/mo

      6000 Luminary Drive 1-304, Chula Vista, CA 91913

      • 1 Bed
      • 1 Bath
      • 734 Sq.Ft.
    View All

    Follow Us On Instagram